Appartement dans le centre historique d’Oria avec terrasse sur le toit

Oria, Pouilles, Italie

327'100 CHF
  1. EUR 350.000
  2. Prix négociable
  3. Commission 3%
  1. Maison de ville
  2. Année de construction 1700
  3. Dernière modernisation 2022
  4. 135 m² Surface totale
  5. 120 m² Surface habitable
  6. 120 m² Surface utile
  7. 6 Pièces
  8. 2 Chambres
  9. 2 Salles de bain
  10. 2 No. d'étages

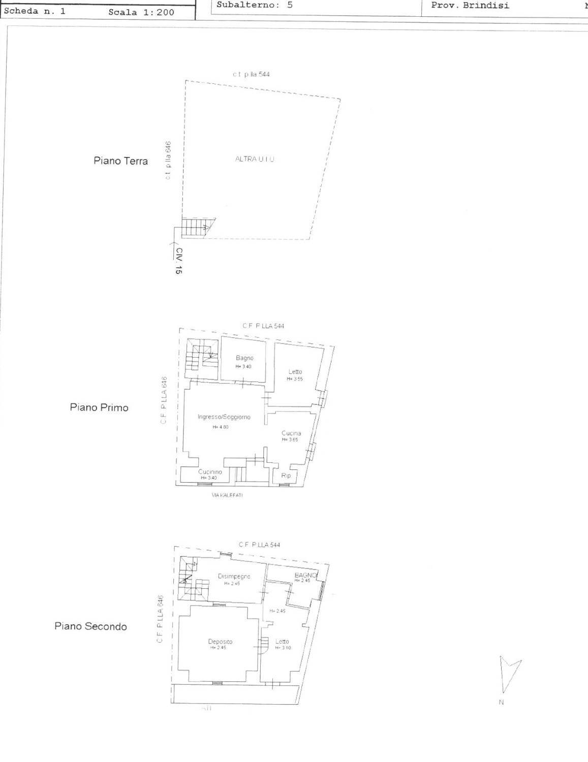
Dans le centre historique d’Oria, un appartement soigneusement restauré est proposé à la vente. Le bien s’étend sur le premier et le deuxième étage et combine des éléments historiques avec des équipements modernes. 

Au premier étage se trouvent un grand espace salon-salle à manger avec cuisine équipée, un coin lecture, un petit bureau, une chambre, une salle d’eau et un dressing. Deux balcons apportent lumière et ventilation. Une pompe à chaleur permet le chauffage et la climatisation selon les besoins. 

Le deuxième étage comprend une deuxième chambre, un espace bureau (facilement transformable en troisième chambre), une deuxième salle d’eau et une buanderie. Cet étage dispose de la climatisation et d’un chauffage au sol électrique. Depuis le balcon, vue sur le château des Staufer et les toits du centre historique. 

Le point fort de l’appartement est la terrasse sur le toit avec vue panoramique sur la cathédrale avec sa coupole colorée, le clocher, le château et l’ensemble du centre historique. Une élégante pergola à lames orientables rend cet espace idéal pour le petit-déjeuner, les dîners en extérieur ou le coucher de soleil sur Oria.

Le bien est situé au cœur de la ville, à quelques pas des restaurants, cafés, commerces et services. Oria se situe dans la Vallée d’Itria, à environ 30 minutes des plages ioniennes et à 35 km de l’aéroport de Brindisi.

Les meubles ne sont pas inclus dans le prix de vente mais peuvent être acquis séparément.

Plans d'étage

Caractère et équipements

Architecture
Style architectural local
Détails architecturaux
Balcon Lucarne Terrasse Plafonds hauts Plafonds voûtés
Construction et façade
Sans cave Façade en brique Façade en pierre
Toit
Terrasse de toit
Fenêtre
Fenêtre en aluminium
État de construction
Rénové
Confort de vie et prestige
Intérieur de luxe
Caractéristiques du bien
Climatisation Internet rapide
Affirmation
Chauffage électrique
Sol
Carreaux de sol historiques
Salle de bains et sanitaires
Douche Salle de bains avec fenêtre
Cuisine
Cuisine disponible Cuisine équipée Cuisine ouverte
Localisation
Situation centrale Vieille ville
Vue
Vue panoramique Vue sur la ville
Installations de fourniture
Terrain entièrement viabilisé
Places de parking
Parking extérieur
Environnement et infrastructures
Commerces Services médicaux Accès aux transports Gastronomie Plage
Utilisation actuelle
Propriété résidentielle B&B Maison de vacances/Résidence secondaire
Utilisation future
Résidence privée/Propriété familiale

Valeurs énergétiques

Demande d'énergie finale
495.80 kWh/(m²a)
Classe d'efficacité énergétique
  • A+
  • A
  • B
  • C
  • D
  • E
  • F
  • G
  • H
Mentions légales

Agence immobilière

Oikos Immobiliare SRL

Via Latiano 7

72024 Oria

Italie
Directeur général
Diego Moretto
Informations sur la société
Autorité de contrôle
FIAIP - Brindisi IQI country manager
Contact
Mobile: +393282252086
Fixe: +39 083 184 5686
S'abonner à Oikos Immobiliare SRL

Recevez les nouvelles offres de propriétés de cette agence par e-mail. L'ordre de recherche peut être désactivé à tout moment.

  • REALPORTICO-ID
    2591941
  • Mis à jour
    Il y a 2 mois
  • Vues
    695
  • Personnes atteintes
    593

Top 10 des pays pour cette propriété

Vues des 30 derniers jours

Oikos Immobiliare SRL

Découvrir d’autres propriétés

Vente aux enchères privée - Demeure dans le sud de l’Italie avec oliveraie et piscine, près de Matera
Contre Offre
Masseria - Ferme fortifiée avec chapelle près d'Oria
165'400 CHF
Demeure à Manduria – Hôtel boutique dans le Salento
2'149'600 CHF

Biens du patrimoine

Autres offres immobilières

Maison de ville Pouilles

Créez une alerte e-mail pour être informé des nouveaux biens ou activez Portico Secrets pour découvrir des offres confidentielles non accessibles au public.

Voir aussi